This design had an unlikely genesis - it began with an email from
a US Army chaplain stationed 'somewhere' in northern Iraq asking
for a simple, cheap Mouse-derived design he could build and race
with his troops in an effort to boost their flagging morale.
Like many of my countrymen
I was against the war in Iraq, but I had every sympathy
for the service men and women called on to do duty out there,
and so I was only too pleased to try to help.
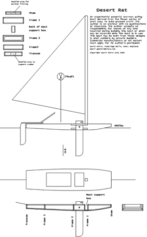
In designing small boats, one of
the main challenges seems always to be to keep building costs
under control, but in this case the shortage of materials was
the issue uppermost in my mind. Plywood was available, as were
nails and Army-issue desert camo paint and polytarp, but I couldn't
presume that epoxy, fillers and tape would be on hand.

Click to enlarge
I felt that the boat should be
buildable in a few hours by someone with no previous boat building
skills, and yet in that hot, anxious environment should provide
some wet, fast and furious fun for a bunch of strong, fit men,
who I imagined would vary widely in their sailing experience.
Given that I could not know where the boats would be sailed, I
had to rely on guesswork - and so I guessed the water available
to my new friend was likely to be inland lakes.
With a design brief like that,
the answer seemed obvious - the Hot Rat is a narrow 12ft scow
with a flat bottom, and largeish leg-of-mutton polytarp spritsail
and a long flat run that should have it planing in a moment. It
swallows up just three sheets of quarter inch ply and is built
with internal chine logs. I expect regular capsizes, so substantial
bouyancy tanks are included to prevent the boat from sinking.

Click to enlarge
My friend the Chaplain was delighted
with the plans I drew, but his building plans were interrupted
when he and his troops were suddenly called to Liberia. The boat
he called the 'Iraqi Freedom Yacht' and I called the 'Hot Rat'
because of its desert origins and hot performance hasn't yet been
used for its intended purpose, but I can't help thinking that
the design has a lot of potential as a boat for teens and young
men and women who sail for fun in many parts of the world. It
must be just about the cheapest club racer in existence, and I
swear that with a few tools and odd bits of metalwork it could
be built in 12 hours or less, probably a lot less if the builder
is experienced in the ways of instant boat building. What could
be better or more fun?
The plans are free. All I ask is
that if you build the boat, please keep in close touch with me
while building, give me a report on how the boat works for you
and let me see as many photos as you can!
Gavin
Atkin, Tunbridge Wells, England December 2003

|